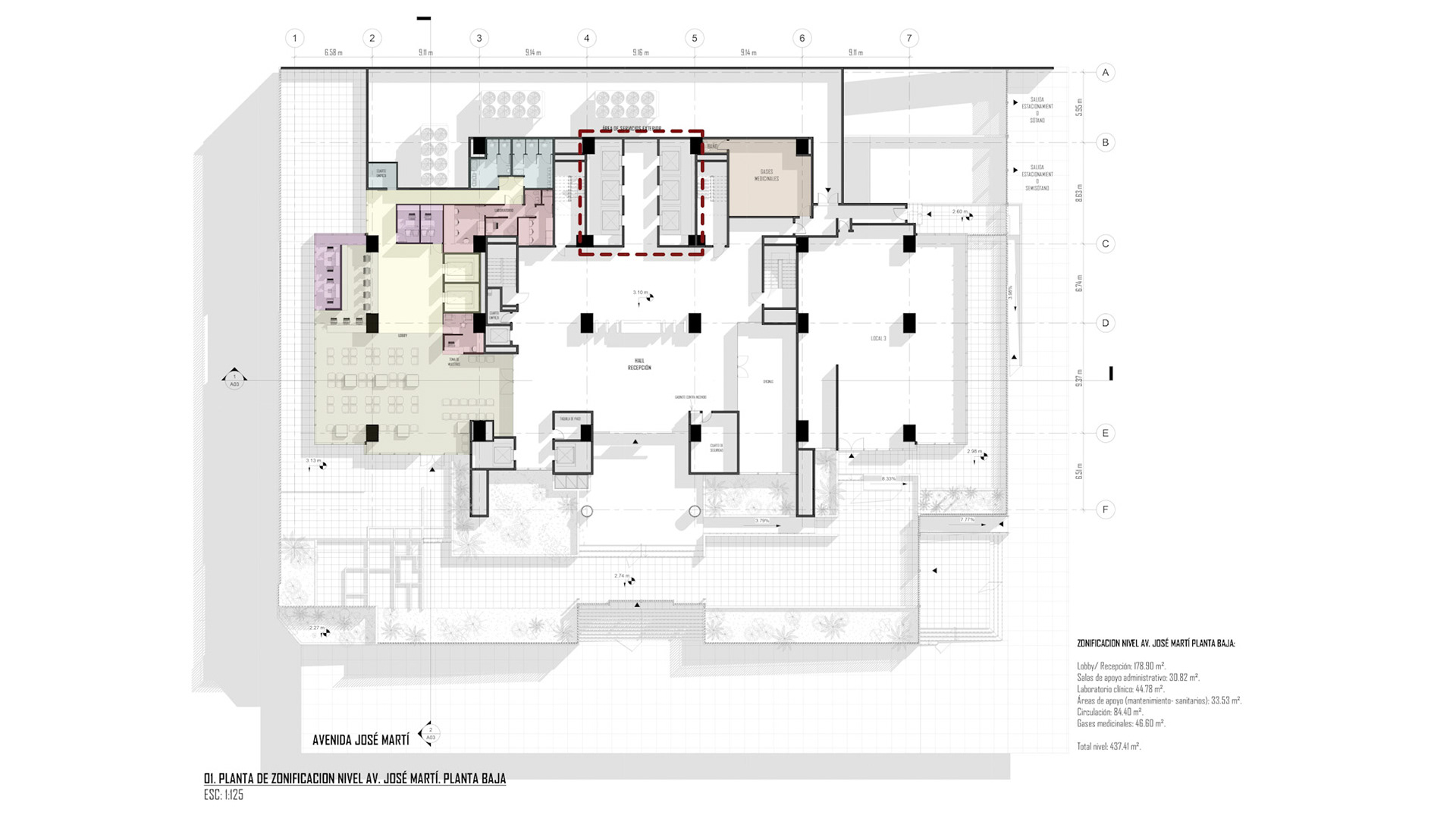
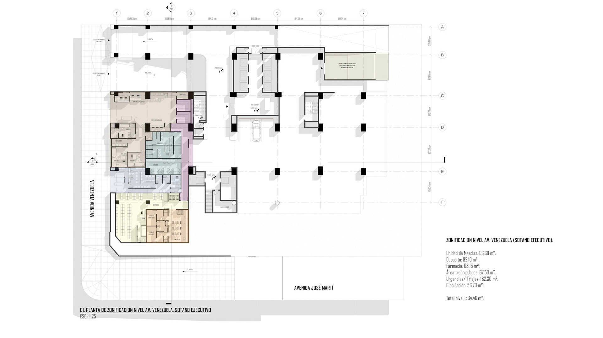
Located within the Centro Financiero Internacional in Caracas, CFI represents a strategic adaptive reuse intervention. The project entailed the integration of a comprehensive healthcare program into a high-density corporate rental complex. A key technical challenge was resolving the functional coexistence of office and medical typologies; this was achieved by introducing dedicated access routes and autonomous vertical circulation nodes. The design condenses the operational requirements of a standard hospital into a compact form factor. Visually, the project references the city's brutalist heritage, synthesizing raw functionality with luxury minimalism to deliver a state-of-the-art facility.
CFI
CFI. A state-of-the-art healthcare project inside a Caracas financial center. Featuring separate circulation nodes and a design inspired by local brutalism.