











arcplusa.com 2018
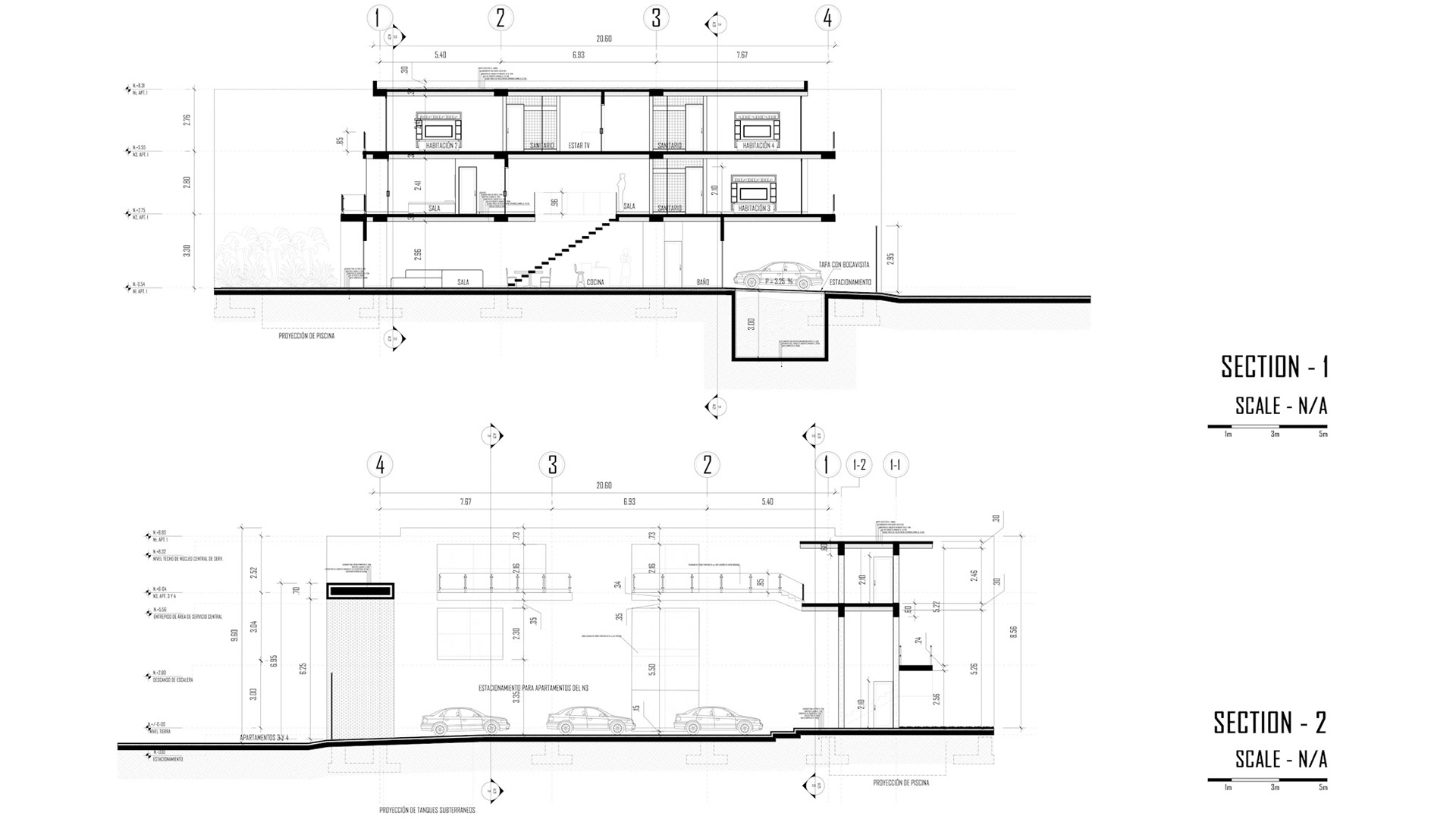
Architectural design made for a small residential complex. Located in Isla Margarita, Venezuela. 2018.